Koopprijs
€ 859.000,- k.k.

Lutten | Anerweg-Zuid 71

Koopprijs
€ 859.000,- k.k.
Bouwjaar
1928
Woning
305 m2
Perceel
1.763 m2
Kamers
9
Brochure

Beschrijving

Gelegen op een mooie locatie in het buitengebied van Lutten, bevindt zich deze fraaie en geheel gerenoveerde vrijstaande woonboerderij met mooi gastenverblijf, een tuinhuis een buitenberging met overkapping en een zwembad met poolhouse. Het geheel is mooi aangelegd en bevindt zich op een perceel van 1.763 m².

In het buitengebied gelegen, maar de grotere kernen als Hardenberg, Dedemsvaart en Coevorden bevinden zich in de nabijheid. Ook Zwolle is zeer goed berijdbaar (ca. 30 autominuten).

Zeer recent is de woning aan de oostzijde prachtig uitgebouwd ten behoeve van een ruime keuken en een extra woonkamer, waarbij je zo vanuit de woonkamer heerlijk het terras op loopt. Daarnaast zijn er nog enkele recente aanpassingen geweest zoals het aanpassen van de indeling van de woning, zodat je kunt genieten van optimaal woongenot en bijvoorbeeld het aanbrengen van vloerverwarming op de begane grond.

Indeling:
Begane grond:
Nieuwe entree in aanbouw, hal, toilet, royale open keuken in U-vorm, voorzien van een mooi granieten aanrecht, dubbele gootsteen, diverse inbouwapparatuur zoals onder andere een enorme fornuis met grillplaat en 6 pitten, een dubbele afzuigkap, een oven, koelkast en een vaatwasser, aparte eethoek met openslaande deuren naar de woonkamer aan de voorzijde, heerlijke 2e tuingerichte woonkamer met openslaande deuren naar het grote terras, de eigen huisbar voorzien van tap, schuifdeuren naar een werkkamer, multifunctionele ruimte met openslaande deuren naar een terras, eigen keuken en eigen badkamer voorzien van inloopdouche, toilet en wastafelmeubel. Vanuit de tuingerichte woonkamer bereik je de tussenhal met witgoedaansluitingen en opstelling CV-ketel, een fraaie badkamer voorzien van royaal hoekbad, ruime inloopdouche en wastafelmeubel, gang met daaraan een kleine slaapkamer en een fijne grote slaapkamer met heerlijke pelletkachel.

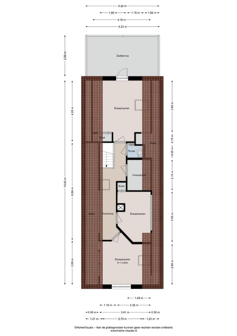
1e verdieping:
Overloop met de nodige opbergruimte in de knieschotkasten, een vaste kast, een grote inloopkast, een slaapkamer aan de voorzijde, een slaapkamer voorzien van dakkapel, separaat toilet en een fijne slaapkamer aan de achterzijde met toegang tot het dakterras gelegen op het zuiden, waar vanaf je mooi over de landerijen kijkt.

Het gastenverblijf:
Mooi vrijstaand gebouw voorzien van een gepotdekselde buitengevel, gelegen op een eigen afgeschermd perceeltje waardoor de privacy gewaarborgd is. Het gastenverblijf is voorzien van een eigen CV combiketel, gevel- en dakisolatie.

Indeling gastenverblijf:
Entree, woonkamer voorzien mooie gebinten, een pelletkachel en openslaande tuindeuren, open keuken voorzien van granieten aanrechtblad, vaatwasser en een 5-pits gastoestel, badkamer voorzien van hangtoilet, ligbad met douche en mechanische ventilatie en een vaste kast met opstelling CV-combiketel.

Via een vaste trap is de verdieping bereikbaar, waar zich een ruime slaapzolder bevindt met twee slaaphoeken en een kastenwand.

Nabij het gastenverblijf bevindt zich een geïsoleerd tuinhuis, voorzien van mooi betegelde binnenkant, een aanrecht en witgoedaansluiting.

Om de huidige warme zomers op een prettige manier het hoofd te bieden is in 2022 het zwembad gerealiseerd. Het betreft een compleet betonnen inbouwzwembad op chloorbasis, voorzien van pomp en filterinstallatie. Dit heerlijke zwembad heeft een afmeting van 7.5 x 3.8 m. Bij het zwembad bevindt zich een prachtige beachbar met een nieuwe zandstenen vloer met natuurstenen rand, het pomphuis en een sanitaire ruimte ruimte met toilet en douche.

Verder bevindt zich op het terrein nog een geïsoleerde berging van ca. 15 m² met daaraan een ruime terrasoverkapping.

Bijzonderheden:
– De woning bevindt zich in goede staat van onderhoud, jaarlijks vindt onderhoud plaats.
– Verwarming geschiedt via CV-combi ketels en pelletkachels.
– De begane grond van de woning is grotendeels voorzien van vloerverwarming.
– Slaapkamers en badkamers op de begane grond.
– CV huis: Nefit uit 2016.
– CV appartement: Intergas 2021.
– CV gastenverblijf: AWB uit 2014.
– De woning is voorzien van gevelisolatie, dakisolatie, gedeeltelijk vloerisolatie en dubbel glas.
– De woning is geheel gerenoveerd.
– Op de daken bevinden zich fraaie gebakken kruispannen.
– Veel privacy in de tuin.
– De voortuin is in 2025 geheel nieuw aangelegd
– In de tuin bevindt zich een sproei installatie met pop-ups.
– Diverse watertappunten in de tuin, alsook elektra punten.
– Twee gazonrobots om het gazon te onderhouden.
– Gastenverblijf in gebruik als B&B, “African Lodge”.

Is deze fraaie woonboerderij je op de buik geschreven? Aarzel dan niet en maak een afspraak voor een bezichtiging. We laten dit mooie plaatje graag aan je zien.




Kadaster


Kenmerken

Adres

StraatnaamAnerweg-Zuid
Huisnummer71
Postcode7775 AR
PlaatsLutten

Overdracht

StatusBeschikbaar
Koopprijs€ 859.000,- k.k.

Bouwvorm

SoortWoonboerderij
TypeVrijstaande woning
Bouwjaar1928
BouwvormBestaande bouw
LiggingenVrij uitzicht, Buiten bebouwde kom, Landelijk gelegen

Indeling

Gebruiksoppervlakte woonfunctie28 m2
Perceel oppervlakte1.763 m2
Gebruiksoppervlakte overige functies3 m2
Inhoud1.091 m3
Aantal kamers9
Aantal slaapkamers5

Energie

Soorten verwarmingCV ketel, Vloerverwarming gedeeltelijk, Houtkachel, Pelletkachel
CV ketel type3 stuks HR CV-ketel
CV ketel bouwjaar2021
Soorten warm waterCV ketel
CV ketel combiketelJa
CV ketel brandstofGas
CV ketel eigendomEigendom

Buitenruimte

TuintypenTuin rondom
KwaliteitFraai aangelegd
Totale oppervlakte1.500 m2

Bergruimte

SoortVrijstaand hout
VoorzieningenVoorzien van elektra, Voorzien van water
IsolatievormenDakisolatie, Muurisolatie
Totaal aantal2

Parkeergelegenheid

SoortenParkeerplaats, Geen garage
Parkeer faciliteitenOp eigen terrein

Dak

Dak typeSamengesteld dak
Dak materialenPannen, Bitumineuze Dakbedekking

Overig

Permanente bewoningJa
Onderhoud binnenGoed tot uitstekend
Onderhoud buitenGoed tot uitstekend
Huidig gebruikWoonruimte
Huidige bestemmingWoonruimte

Voorzieningen

VoorzieningenMechanische ventilatie, TV kabel, Zwembad, Airconditioning, Rookkanaal, Dakraam, Glasvezel kabel, Natuurlijke ventilatie


Vergelijkbare Woningen


Contact


Mijnheer Makelaars
Langewijk 350
7701 AR Dedemsvaart
0523 - 612 474
info@mijnheermakelaars.nl