Dedemsvaart | De Vossestaart 12
- Onder bod
Beschrijving
Op een hele mooie vrije locatie nabij het Zuiderbos, bevindt zich deze nette twee onder een kap woning met ruime aangebouwde garage en overkapping. De woning is gelegen op een perceel van 264 m².
Achter de woning bevindt zich een speelveldje en schuin tegenover loop je zo het Zuiderbos in.
Indeling woonhuis:
Begane grond: Entree, hal, toilet met staand toilet en waterfontein, trapopgang, woonkamer voorzien van PVC vloer, open keuken voorzien van diverse inbouwapparatuur zoals een inductie kookplaat, afzuigkap, oven, vaatwasser, een koel-vries combinatie, een carrousel kast en een fraai granieten aanrechtblad, bijkeuken voorzien van een schuifkast met daarin de witgoedaansluitingen. Vanuit de bijkeuken is er een doorloop naar de ruime garage.
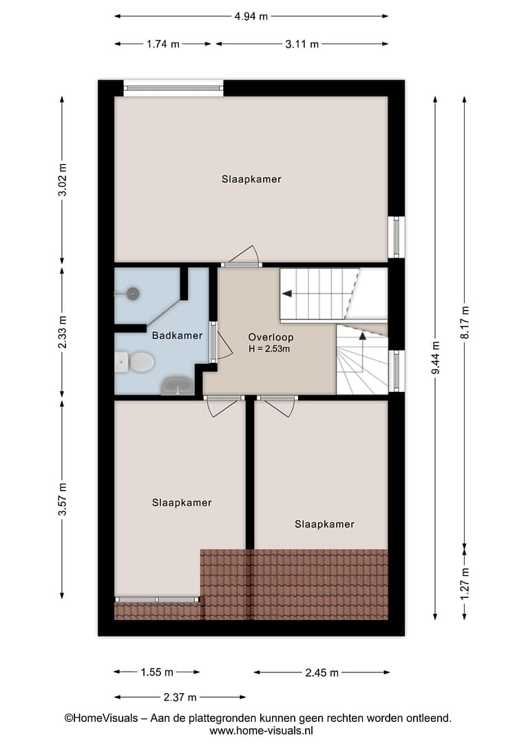
1e verdieping:
overloop, 3 slaapkamers waarvan 1 voorzien van dakkapel, badkamer voorzien van een inloopdouche, een wastafelmeubel en een staand toilet.
2e verdieping:
Via een vaste trap bereikbaar, nu een open ruimte, maar het is relatief eenvoudig hier een extra slaapkamer te realiseren
Hier bevindt zich nog een kleine zolder die in gebruik is als bergruimte.
De garage heeft een totale oppervlakte van ca. 27 m². Het voorste gedeelte met elektrische garagedeur, biedt ruimte aan een auto, het achterste gedeelte is een hele fijne plek om te klussen. De garage is aan de achterzijde breder en hier bevindt zich ook een loopdeur.
De garage is verder ook voorzien van verwarming en water.
Bijzonderheden:
– Het bouwjaar van de woning is 1989.
– Verwarming en warmwatervoorziening via een Intergas HRE CV-combiketel uit 2025.
– De woning is voorzien van dakisolatie, gevelisolatie, vloerisolatie en grotendeels dubbel glas.
– In 2025 is de dakkapel voorzien van kunststof kozijnen.
– De overkapping dateert van 2013.
– Omstreeks 2008 is de garage aan de achterzijde vergroot t.b.v. werkruimte.
– Keukenapparatuur is grotendeels vernieuwd.
– De woonkamer is voorzien van elektrische screens.
– De woning bevindt zich in een goede staat van onderhoud.
– Vanuit het keukenraam kijk je zo het Zuiderbos in.
Als bovenstaande je belangstelling heeft gewekt, neem dan contact met ons op, zodat we een afspraak kunnen inplannen voor een bezichtiging. We laten je de woning graag zien.
Kenmerken
Adres |
|
| Straatnaam | De Vossestaart |
| Huisnummer | 12 |
| Postcode | 7702 AL |
| Plaats | Dedemsvaart |
Overdracht |
|
| Status | Onder bod |
| Koopprijs | € 365.000,- k.k. |
Bouwvorm |
|
| Soort | Eengezinswoning |
| Type | Twee onder één kapwoning |
| Bouwjaar | 1989 |
| Bouwvorm | Bestaande bouw |
| Liggingen | Aan bosrand, Aan rustige weg, In woonwijk |
Indeling |
|
| Gebruiksoppervlakte woonfunctie | 0 m2 |
| Perceel oppervlakte | 264 m2 |
| Gebruiksoppervlakte overige functies | 27 m2 |
| Inhoud | 405 m3 |
| Aantal kamers | 4 |
| Aantal slaapkamers | 3 |
Energie |
|
| Soorten verwarming | CV ketel |
| CV ketel type | Intergas HRE |
| CV ketel bouwjaar | 2025 |
| Soorten warm water | CV ketel |
| CV ketel combiketel | Ja |
| CV ketel brandstof | Gas |
| CV ketel eigendom | Eigendom |
Buitenruimte |
|
| Tuintypen | Achtertuin, Voortuin |
| Kwaliteit | Normaal |
| Totale oppervlakte | 180 m2 |
Bergruimte |
Parkeergelegenheid |
|
| Soorten | Aangebouwd steen |
| Voorzieningen | Elektra, Water, Elektrische deur |
| Capaciteit | 1 |
| Oppervlakte | 24 m2 |
| Isolatievormen | Geen isolatie |
| Parkeer faciliteiten | Openbaar parkeren, Op eigen terrein |
Dak |
|
| Dak type | Zadeldak |
| Dak materialen | Pannen |
Overig |
|
| Permanente bewoning | Ja |
| Onderhoud binnen | Goed |
| Onderhoud buiten | Goed |
| Huidig gebruik | Woonruimte |
| Huidige bestemming | Woonruimte |
Voorzieningen |
|
| Voorzieningen | TV kabel, Buitenzonwering, Glasvezel kabel, Natuurlijke ventilatie |
Vergelijkbare Woningen
- Verkocht onder voorbehoud
- Verkocht onder voorbehoud
Contact

Mijnheer Makelaars
Langewijk 350
7701 AR Dedemsvaart
0523 - 612
474
info@mijnheermakelaars.nl



























































