Koopprijs
€ 665.000,- k.k.

Dedemsvaart | De Aak 136

Koopprijs
€ 665.000,- k.k.
Bouwjaar
1978
Woning
178 m2
Perceel
551 m2
Kamers
6
Brochure

Beschrijving

Gelegen op een mooie rustige locatie bevindt zich deze geheel gerenoveerde, gemoderniseerde en verduurzaamde vrijstaande woning met vrijstaande garage, berging en terrasoverkapping. Sinds 2016 is de woning en tuin geheel op de schop gegaan en aangepast tot wat het nu is. Van nieuwe isolatie tot nieuwe elektra, nieuwe indeling, nieuwe badkamer en keuken, nagenoeg alles is aangepast. Dit heeft geleid tot een prachtige eigentijdse moderne woning met energielabel A+++. Het oorspronkelijke bouwjaar van de woning is 1978.
Het geheel bevindt zich op een mooi vrij gelegen en privacy biedend perceel van 551 m².

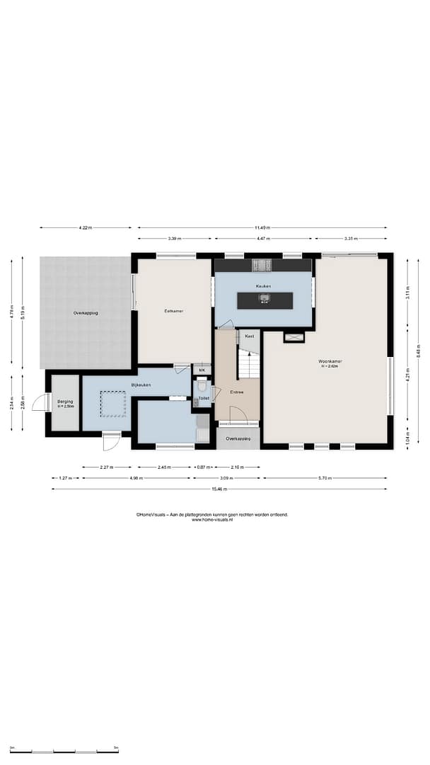
Indeling:
Begane grond: ruime en lichte hal met vide, prachtige moderne trap met trapkast, meterkast met 3 fasen, toilet met fontein, royale woonkamer voorzien van prachtige vloer, gezellige gashaard en schuifpui naar het terras, prachtige luxe open keuken voorzien van spoeleiland, fraai keramisch aanrechtblad, diverse inbouwapparatuur zoals onder andere vaatwasmachine, koelkast, 5-pits gasfornuis en afzuigschouw, eetkamer voorzien van schuifpui naar overdekt terras, wasruimte met de witgoedaansluitingen, ruime achterhal voorzien van lichtkoepel en kastenwand.

1e verdieping: Overloop, 4 mooie slaapkamers, luxe badkamer voorzien van een inloopdouche met regendouche, hangend toilet, wastafelmeubel met 2 stenen waskommen, een solitair ligbad en vloerverwarming. verder bevindt zich op de eerste verdieping een ruime inloopkast/berging.
Alle slaapkamers zijn voorzien van airco voor verwarming en koeling.

De woning is voorzien van fraaie stoffering, zoals gordijnen en dergelijke. Omdat dit zo’n mooi geheel vormt, blijft dit in de woning achter.

Bijzonderheden:
– Woning en tuin zijn volledig gerenoveerd, gemoderniseerd en verduurzaamd sinds 2016.
– Energielabel A+++.
– Verwarming begane grond via hybride warmtepomp en vloerverwarming.
– Verwarming en koeling op de verdieping via airconditioning.
– Badkamer voorzien van vloerverwarming via hybride warmtepomp.
– De woning bevindt zich in een uitstekende staat van onderhoud.
– Het pannendak van de woning en de garage is vernieuwd in 2020.
– Platte daken aangebracht in 2020 en voorzien van isolatie en EPDM-dakbedekking.
– Woning geheel voorzien van horren tegen insecten.
– Nieuwe luxe gashaard in de woonkamer voorzien van nieuw RVS rookkanaal, eventueel ook geschikt voor houtkachel.
– Laadpaal is eventueel ter overname.
– Luxe stoffering blijft achter.
– De woning is voorzien van 23 zonnepanelen met een capaciteit van 10.500 Kw.
– De overkapping en de dakkapel zijn vervaardigd van thermisch gemodificeerd hout (ayous). Dit is zeer duurzaam, onderhoudsarm en hoeft niet behandeld te worden.

Ben je benieuwd geworden naar deze fraaie, moderne, instapklare woning en zie je jezelf al wonen op deze mooie plek, neem dan contact op met ons kantoor. We laten je de woning graag uitgebreid zien en vertellen je er graag over.




Kadaster


Kenmerken

Adres

StraatnaamDe Aak
Huisnummer136
Postcode7701 LD
PlaatsDedemsvaart

Overdracht

StatusBeschikbaar
Koopprijs€ 665.000,- k.k.

Bouwvorm

SoortEengezinswoning
TypeVrijstaande woning
Bouwjaar1978
BouwvormBestaande bouw
LiggingenAan rustige weg, In woonwijk

Indeling

Gebruiksoppervlakte woonfunctie44 m2
Perceel oppervlakte551 m2
Gebruiksoppervlakte overige functies3 m2
Inhoud661 m3
Aantal kamers6
Aantal slaapkamers4

Energie

Soorten verwarmingCV ketel, Vloerverwarming gedeeltelijk, Warmtepomp, Gashaard
CV ketel typeNefit CW5
CV ketel bouwjaar2011
Soorten warm waterCV ketel
CV ketel combiketelJa
CV ketel brandstofGas
CV ketel eigendomEigendom

Buitenruimte

TuintypenTuin rondom
KwaliteitFraai aangelegd
Totale oppervlakte400 m2

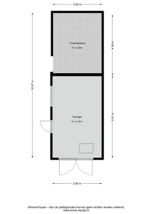
Bergruimte

SoortAangebouwd steen
VoorzieningenVoorzien van elektra
IsolatievormenDakisolatie, Muurisolatie
Totaal aantal1

Parkeergelegenheid

SoortenVrijstaand steen
VoorzieningenElektra, Water, Vliering
Capaciteit1
Oppervlakte21 m2
IsolatievormenGeen isolatie
Parkeer faciliteitenOp eigen terrein

Dak

Dak typeZadeldak
Dak materialenPannen
Dak toelichtingNieuwe dakisolatie 2012, nieuwe dakpannen 2020.

Overig

Permanente bewoningJa
Onderhoud binnenUitstekend
Onderhoud buitenUitstekend
Huidig gebruikWoonruimte
Huidige bestemmingWoonruimte

Voorzieningen

VoorzieningenMechanische ventilatie, TV kabel, Airconditioning, Rookkanaal, Schuifpui, Dakraam, Glasvezel kabel, Domtica, Zonnepanelen, Natuurlijke ventilatie


Vergelijkbare Woningen


Contact


Mijnheer Makelaars
Langewijk 350
7701 AR Dedemsvaart
0523 - 612 474
info@mijnheermakelaars.nl