Slagharen | Prinses Marijkelaan 19
- Onder bod
Beschrijving
Gelegen op een mooie en rustige locatie nabij het centrum van het dorp, bevindt zich deze twee onder een kap woning met aangebouwde garage, carport en uitbouw aan de achterzijde. De huidige eigenaar is begonnen met de renovatie van de woning, echter dit dient nog wel afgemaakt te worden. Het betreft dan ook een kluswoning.
Intussen is de vloer deels vervangen door een geïsoleerde schuimbeton vloer, is de badkamer vernieuwd en zijn er enkele indelingswijzigingen gerealiseerd. Een ideale starterswoning voor degene die graag de handen uit de mouwen steekt om hier geheel naar eigen smaak iets prachtigs te realiseren. Het geheel is gelegen op een mooi ruim perceel van 332 m².
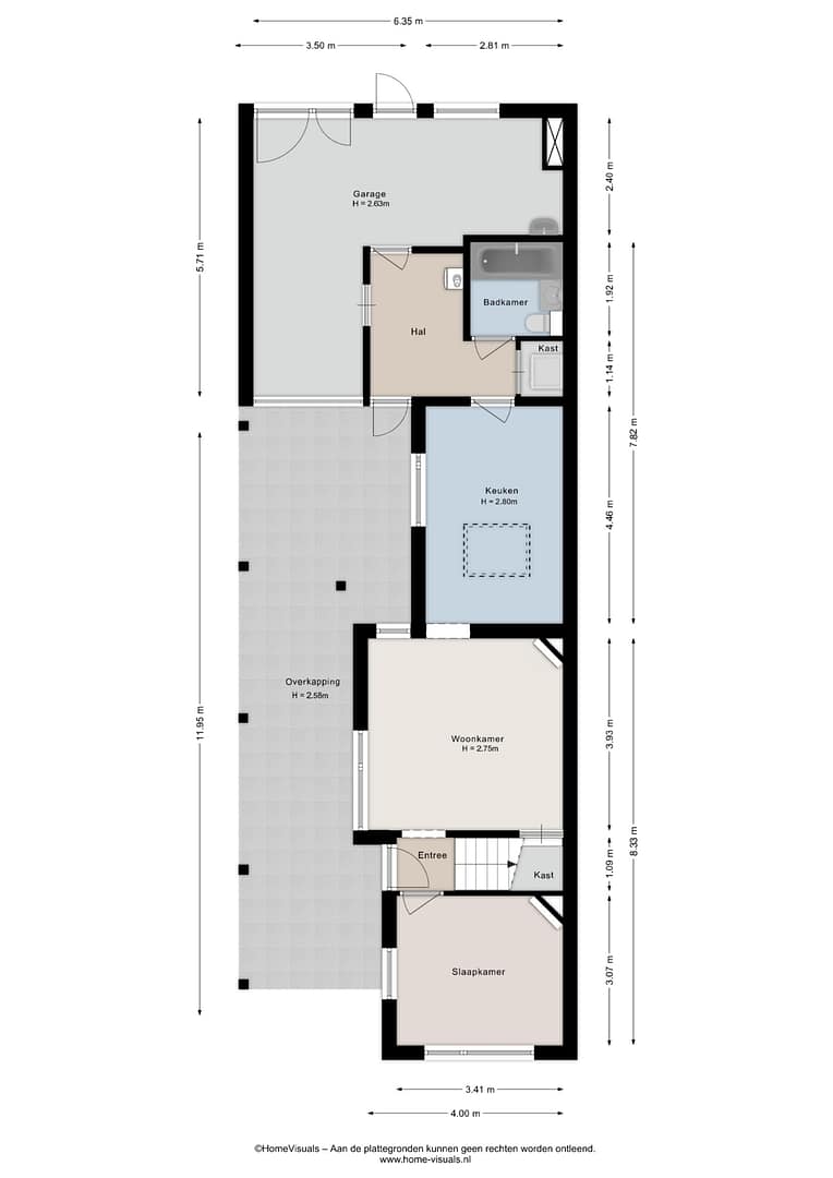
Indeling:
Begane grond:
Entree, hal, trapopgang, woonkamer aan de voorzijde, eetkamer, keukenruimte met lichtkoepel, achterhal met opstelling CV-combiketel (Remeha uit 2022), vaste kast met witgoedaansluiting, gerenoveerde badkamer (2024) voorzien van bad/douchecombinatie, elektrische vloerverwarming, wastafelmeubel en hangend toilet, doorloop naar (voormalige) garage, waarbij de scheidingsmuur naar de garage verwijderd is met als doel hier een grote tuingerichte kamer te realiseren.
1e verdieping:
Via een vaste trap bereikbaar, overloop en twee prima slaapkamers.
Via een vlizotrap is de bergzolder bereikbaar.
De tuin is eenvoudig en geheel naar eigen smaak in te richten. Achterin de tuin bevindt zich een houten schuur van ca. 24 m².
Bijzonderheden:
– Het betreft een kluswoning.
– In 2022 is een Remeha CV-combiketel (CW5) geplaatst.
– Het platte dak is voorzien van nieuwe dakbedekking.
– De woning is voorzien van 6 zonnepanelen uit 2023.
– Bouwjaar van de woning is 1938.
– Een mooie gelegenheid om geheel naar eigen smaak en inzicht hier iets moois van te maken.
– De woning wordt verkocht met de volgende extra clausules: “as is where is-clausule” en een “niet bewonersclausule”.
– Als voorbeeld zijn er enkele artist impressions toegevoegd aan de fotopresentatie om een indruk te krijgen van de situatie
na verbouwing.
Kortom: als je op zoek bent naar een leuke starterswoning, waarbij je alles naar je eigen smaak kan inrichten en indelen, neem dan gerust contact op met ons kantoor om een afspraak te maken voor een bezichtiging. We laten je de mogelijkheden graag zien.
Video
Kenmerken
Adres |
|
| Straatnaam | Prinses Marijkelaan |
| Huisnummer | 19 |
| Postcode | 7776 XA |
| Plaats | Slagharen |
Overdracht |
|
| Status | Onder bod |
| Koopprijs | € 225.000,- k.k. |
Bouwvorm |
|
| Soort | Eengezinswoning |
| Type | Twee onder één kapwoning |
| Bouwjaar | 1938 |
| Bouwvorm | Bestaande bouw |
| Liggingen | Aan rustige weg, In woonwijk |
Indeling |
|
| Gebruiksoppervlakte woonfunctie | 16 m2 |
| Perceel oppervlakte | 332 m2 |
| Gebruiksoppervlakte overige functies | 31 m2 |
| Inhoud | 430 m3 |
| Aantal kamers | 4 |
| Aantal slaapkamers | 2 |
Energie |
|
| Soorten verwarming | CV ketel, Vloerverwarming gedeeltelijk |
| CV ketel type | Remeha Tzerra Combi HR |
| CV ketel bouwjaar | 2022 |
| Soorten warm water | CV ketel |
| CV ketel combiketel | Ja |
| CV ketel brandstof | Gas |
| CV ketel eigendom | Eigendom |
Buitenruimte |
|
| Tuintypen | Achtertuin, Voortuin |
| Kwaliteit | Aan te leggen |
| Totale oppervlakte | 189 m2 |
Bergruimte |
|
| Soort | Vrijstaand hout |
| Voorzieningen | Voorzien van elektra |
| Totaal aantal | 1 |
Parkeergelegenheid |
|
| Soorten | Vrijstaand steen, Carport |
| Voorzieningen | Elektra |
| Capaciteit | 1 |
| Oppervlakte | 15 m2 |
| Isolatievormen | Dakisolatie |
| Parkeer faciliteiten | Openbaar parkeren, Op eigen terrein |
Dak |
|
| Dak type | Zadeldak |
| Dak materialen | Pannen |
Overig |
|
| Permanente bewoning | Ja |
| Onderhoud binnen | Matig |
| Onderhoud buiten | Matig |
| Huidig gebruik | Woonruimte |
| Huidige bestemming | Woonruimte |
Voorzieningen |
|
| Voorzieningen | Zonnepanelen, Natuurlijke ventilatie |
Vergelijkbare Woningen
Contact

Mijnheer Makelaars
Langewijk 350
7701 AR Dedemsvaart
0523 - 612
474
info@mijnheermakelaars.nl















































